Sunny 2-bedroom Ground Floor apartment with Lock-Up Garage
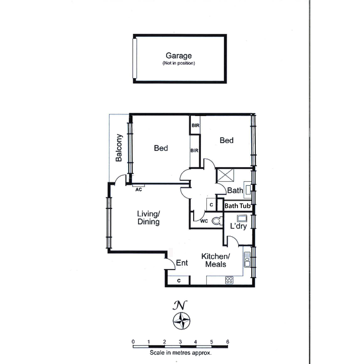
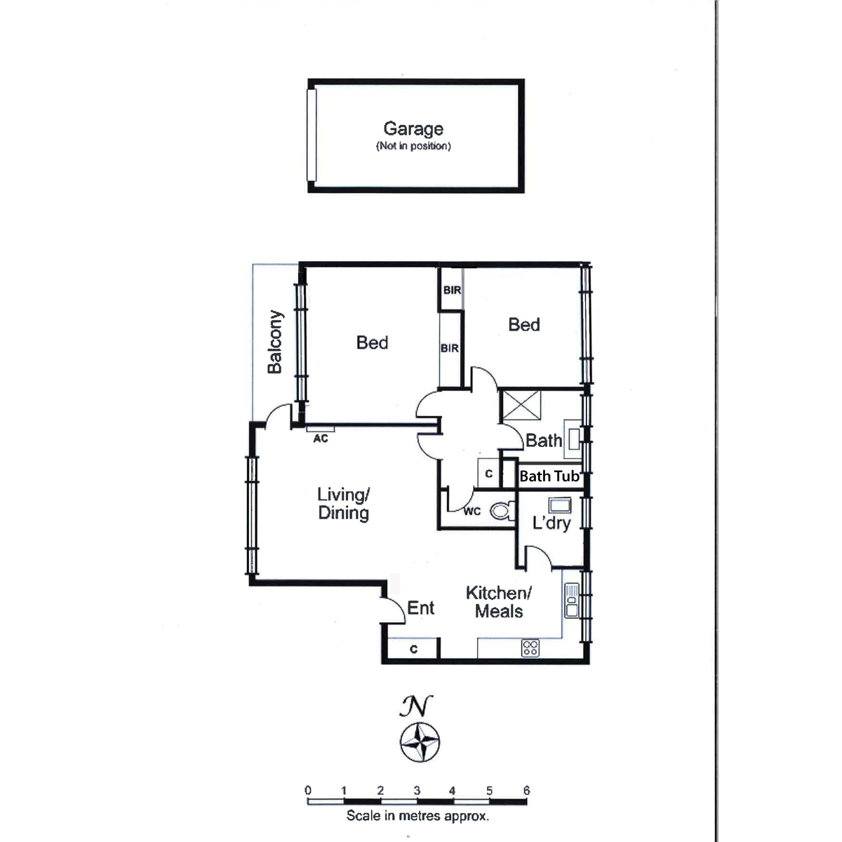
Quietly located on the ground level this sun filled and spacious 2-bedroom spacious unit with solid timber floors is available now. Offering two spacious bedrooms both with built in robes, modern kitchen with stainless steel appliances, dishwasher, meals area, sun drenched living area opening up to a balcony, sparkling family bathroom with a bath and separate shower, separate toilet and separate laundry currently includes washing machine. Split system heating and cooling, storage, and a spacious lock up garage all add to this apartment’s appeal.
Walking distance to Caulfield Park, Synagogue, shops, cafes and transport.
Property Features
- Apartment
- 2 bed
- 1 bath
- Floor Area is 0 m²
- 1 Garage
- Air conditioning
- Secure Parking
- Dishwasher
- Built In Robes
- Balcony
Available from 2026-05-04





